Thang Nâng Hàng VNDB dành cho công trình
Các công trình lớn hiện nay đa số đều lắp đăt Thang máy tời hàng vì thiết bị này khá tiện dụng cho các nhà máy, xí nghiệp, để đảm bao nhu cầu vận chuyển ngày càng cao, nếu vận chuyển truyền thống sẽ làm giảm năng suất lao động và tiến độ thực hiện đơn hàng.
Thang Nâng Hàng VNDB dành cho công trình
Các công trình lớn hiện nay đa số đều lắp đăt Thang máy tời hàng vì thiết bị này khá tiện dụng cho các nhà máy, xí nghiệp, để đảm bao nhu cầu vận chuyển ngày càng cao, nếu vận chuyển truyền thống sẽ làm giảm năng suất lao động và tiến độ thực hiện đơn hàng.
Mẫu thang máy tời hàng
Chúng tôi xin giới thiệu dòng thang máy tời hàng cho công trình kể từ khi thiết kế đến nhưng thông số kỹ thuật của loại thang này.
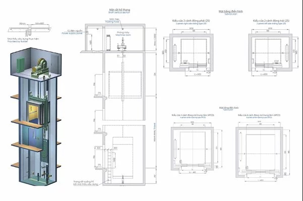
Thông số thiết kế thang máy tời hàng
Khi thiết kế thang máy tải hàng chúng ta cần qua tâm đến những thông số cơ bản. Loại thang máy có phòng máy, hay không phòng máy dùng động cơ kéo hay động thủy lực. Ngoài ra các bạn cần lưu ý những điểm như sau: Thứ nhất về tải trọng thang máy, thứ hai về kích thước thang máy, thứ 3 về độ cao tầng trên cùng (OH), thứ 4 về độ sâu hầm thang (PIT). Sau đây thang máy VNDB xin gửi đến quý khách hàng thiết kế thang máy tải hàng của chúng tôi từ 500kg-5000kg.
Thiết kế thang máy có phòng máy.
Thiết kế thang máy không phòng máy
Trên đây là thông số của tải trọng thang tiêu chuẩn của chúng tôi, đối với nhưng loại thang có kích thước phi tiêu chuẩn các bạn có thể liên hệ với chúng tôi theo số: 0987 01 20 20
Thông số kỹ thuật thang máy tời hàng.
Các chi tiết kỹ thuật của thang máy tời hàng phải được bên mua thống nhất trước khi ký kết hợp đồng kinh tế. Trong trường hợp có những thay đổi về chi tiết kỹ thuật của thang máy tải hàng. từ phía bên Mua như bổ sung, bỏ bớt hoặc điều chỉnh thì phải có sự thống nhất giữa hai bên và sự thay đổi đó sẽ làm ảnh hưởng đến tiến độ thực hiện công vịêc giá trị của hợp đồng kinh tế. Việc thay đổi kỹ thuật do bên mua yêu cầu chỉ được phép điều chỉnh trong khoảng thời gian 5-10 ngày kể từ ngày ký hợp đồng.
Thông số chung
Số hiệu thang: FI - 500 - 5000
Mã hiệu: FI
Số lượng 01
Hãng sản xuất: ACG
Tải trọng (số người): 500-5000 kg
Tốc độ (m/p): 30 m/p
Số tầng: 2-10
Số điểm dừng: 2-10
Số cửa tầng phục vụ: 2-10
Tầng phục vụ: F1, F2...F10
Hiển thị nút ấn bảng gọi tầng: ↑ 1, 2..10 ↓
Tầng mặc định: Tầng 1
Chiều cao tầng (mm): F0 Theo thực tế công trình;
F10(OH): >4200
Kích thước trong giếng thang (rộng x sâu):
Kích thước trong cabin (Rộng x sâu x cao):
Chiều cao tầng trên cùng (OH) (mm): >3200
Hố thang tải. (Pit nổi): 1400
Tổng chiều cao giếng thang: Theo thực tế công trình
Chiều cao nâng: Theo thực tế công trình
Vị trí đối trọng: hông cabin
Kết cấu giếng thang: Bê tông cốt thép, tường gạch, khung thép
Vị trí đặt máy:trên đỉnh giếng thang
Thông số thiết kế cabin
Kích thước trong (rộng x sâu x cao):
Độ rộng mở cửa ( rộng x cao) :
Vật liệu vách cabin Inox sọc nhuyễn
Sàn cabin Inox sọc nhuyễn
Trần cabin Inox sọc nhuyễn
Cửa cabin, và cửa tầng
Vật liệu cửa, vách bao chân Inox sọc nhuyễn
Loại cửa Đóng mở lên xuống hoặc kéo từ 1 phía lên. Bảng gọi ngoài cửa tầng inox sọc nhuyễn 2.5mm
Tủ điều khiển
Hệ điều khiển bằng hệ biến tần số (VVVF), tự động hoàn toàn. Xử lý tín hiệu gọi tầng theo trình tự ưu tiên chiều đang hoạt động: Tập hợp đa chiều (Full selective collective control) bằng PLC, ứng dụng trí tuệ thông minh (Interligence) trong chuyển động của thang. Bộ ghi nhớ lưu giữ toàn bộ tín hiệu gọi tầng theo hai chiều lên xuống.VVVF, PLC sản xuất tại Nhật Bản.
- Biến tần (Inverter) FUJI-LIFT chuyên dùng cho thang máy tải hàng (Made in Japan). Công suất 11 KW (tiết kiệm 25% lượng điện tiêu thụ).
- MAGNETIC CONTACTOR MITSUBISHI
(Made in Japan)
- ENCORDER CARD MITSUBISHI: Model FR-A7AP ( Made in Japan)
- APTOMAS MITSUBISHI (Made in Japan)
- AIR CIRUIT BREAKER (Made in Japan)
Động cơ Thang máy tải hàng Mitsubishi
Xuất xứ: Thái Lan
Loại: Mitsubishi
Công suất: 5.5 kW
Số lần khởi động cho phép: 180 lần/giờ
Nguồn điện: 380VAC, 3 pha, 50Hz
Dung sai điện áp cho phép: ± 5%
Cửa tầng và cửa cabin
Cửa tầng và cửa cabin thang máy tời hàng loại bốn cánh đóng mở tự động về một phía, điều khiển theo cửa phòng thang, cửa tầng chỉ được mở khi phòng thang dừng đúng tầng. Nhập khẩu của hãng NingBo, theo tiêu chuẩn Thang máy MITSUBISHI, tự động hoàn toàn, điều khiển tốc độ cửa bằng biến tần (VVVF MITSUBISHI sản xuất tại Nhật Bản) đóng mở nhanh, chậm dần đều.
Rail dẫn hướng Thang máy tải hàng
- Cabin 13K - bảo hành 10 năm.
- Đối trọng 8K - bảo hành 10 năm.
Tính năng an toàn của thang máy tải hàng
- Tín hiệu báo quá tải: khi Tải trọng trong thang vượt quá tải trọng định mức, thang không hoạt động cho đến khi giảm bớt số lượng hàng hóa trong thang.
- Bảo vệ giới hạn cuối: Công tắc giới hạn cuối, công tắc giới hạn chiều, công tắc giảm tốc là các thiết bị an toàn để bảo vệ thang.
- Bảo vệ vượt tốc: Chức năng này đảm bảo cho vận tốc cabin nằm trong phạm vi an toàn để bảo vệ hàng hóa.
- Bảo vệ quá dòng và quá tải: Hệ thống này sẽ tự động kiểm tra dòng điện dộng cơ và tình trạng quá tải. Nếu vượt quá giá trị định sẵn, thang sẽ báo lỗi
Lựa chọn giá thang máy tải hàng
Trên thị trường hiện nay thang máy tải hàng có nhiều mức giá khác nhau, giá có thể từ 100.000.000 VND đến 3.000.000.000 VNĐ, tùy từng loại thang, tải trọng thang máy, số điểm dừng thang máy, để hiểu kỹ hơn quý khách vui lòng gọi cho chúng tôi theo số 0987 01 20 20 để được tư vấn và so sánh kỹ hơn.
Dịch vụ hậu mãi, kiểm định
Thời gian bảo hành toàn bộ thiết bị được lắp đặt cho công trình là 12 tháng tính từ ngày nghiệm thu bàn giao thang. Thang máy tải hàng của chúng tôi được kiểm định bởi trung tâm kiểm định khu vực 1 bộ lao động thương binh xã hội.
Để phục vụ cho việc bảo hành, bảo trì và sửa chữa cho tất cả các loại thang tải hàng. của công ty cung cấp, lắp đặt và nhằm đáp ứng kịp thời, nhanh, công ty chúng tôi luôn dự trữ một khối lượng lớn những phụ tùng và thiết bị thay thế cho các công trình của công ty. Linh kiện thay thế được dự trữ và sản xuất từ năm 2019 trở về sau. Sau thời gian bảo hành, chúng tôi sẽ cung cấp cho khách hàng một dịch vụ bảo dưỡng, bảo trì theo yêu cầu của khách hàng (1 năm, 5 năm, 10 năm hoặc nhiều hơn…).
Sau khi nghiệm thu bàn giao, công ty sẽ cung cấp một bộ hồ sơ kỹ thuật và lý lịch Thang máy tải hàng. chi tiết cho khách hàng. Đồng thời, chúng tôi sẽ cử nhân viên kỹ thuật hướng dẫn, huấn luyện và đào tạo cho nhân viên của khách hàng cách vận hành thang, sử dụng thang và cách giải quyết những sự số xảy ra trong trường hợp khẩn cấp trong vòng 1 tuần.









Xem thêm